Ya hemos empezado la re-reforma de un piso del Eixample.…
Xaloc -5
Ya tenemos el proyecto basico acabado, y estamos en fase de acabar el proyecto ejecutivo.
La obra ha empezado, las paredes caen una tras otra…esto es ya una obra de verdad, despues de haber sido una casa habitables de las 70.
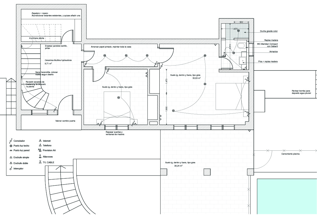
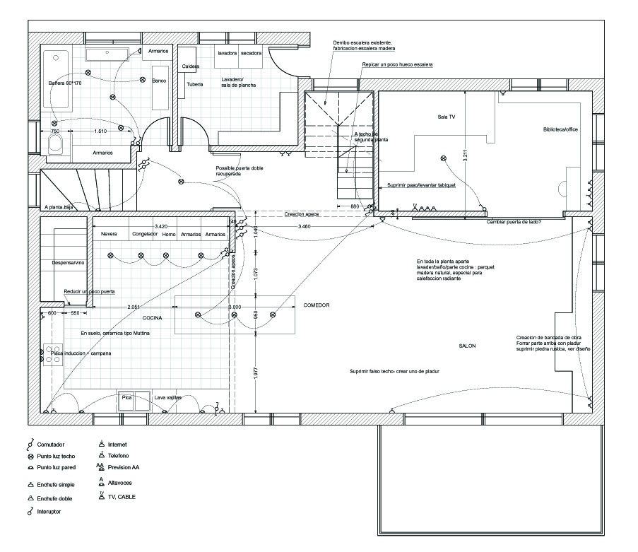
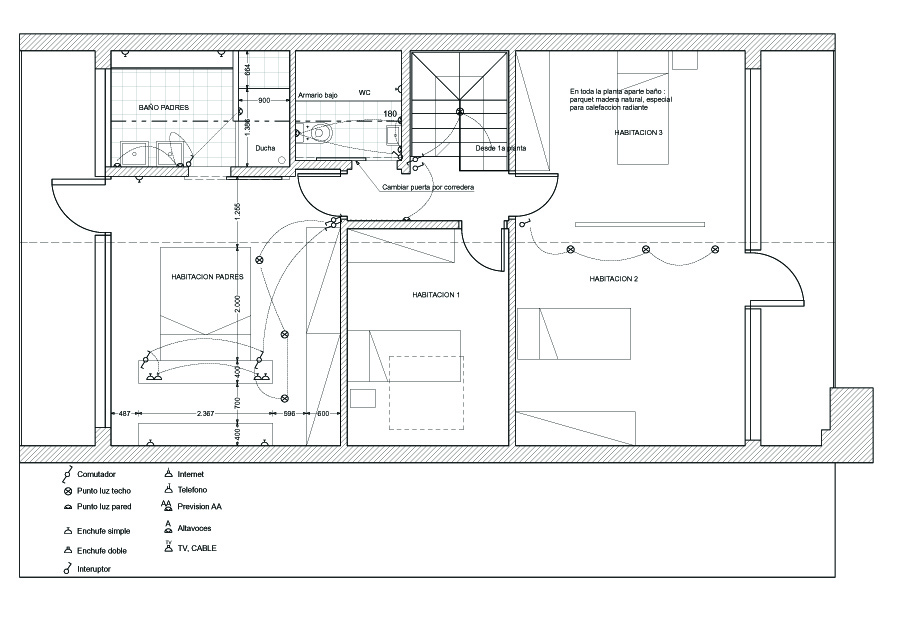
Estamos ya ultimando los detalles de diseño de los baños, de la cocina, de los armarios…la escalera hacia la primera planta va a ser una escultura de madera muy sencilla, pero….su dibujo es de una gran complejidad!!!
A menudo es asi : las cosas mas sencillas son las que tienen un gran trabajo detras.
(click en los planos para agrandar)
Previous Post: Châpeau!








